Dům se čtyřmi zahradami [Radomyšl]
       
     
jihoychodni_kamera06.jpg
       
     
jiznii_kamera02.jpg
       
     
vychodni_kamera03.jpg
       
     
interier04_.jpg
       
     
interier01.jpg
       
     
interier03.jpg
       
     
interier02.jpg
       
     
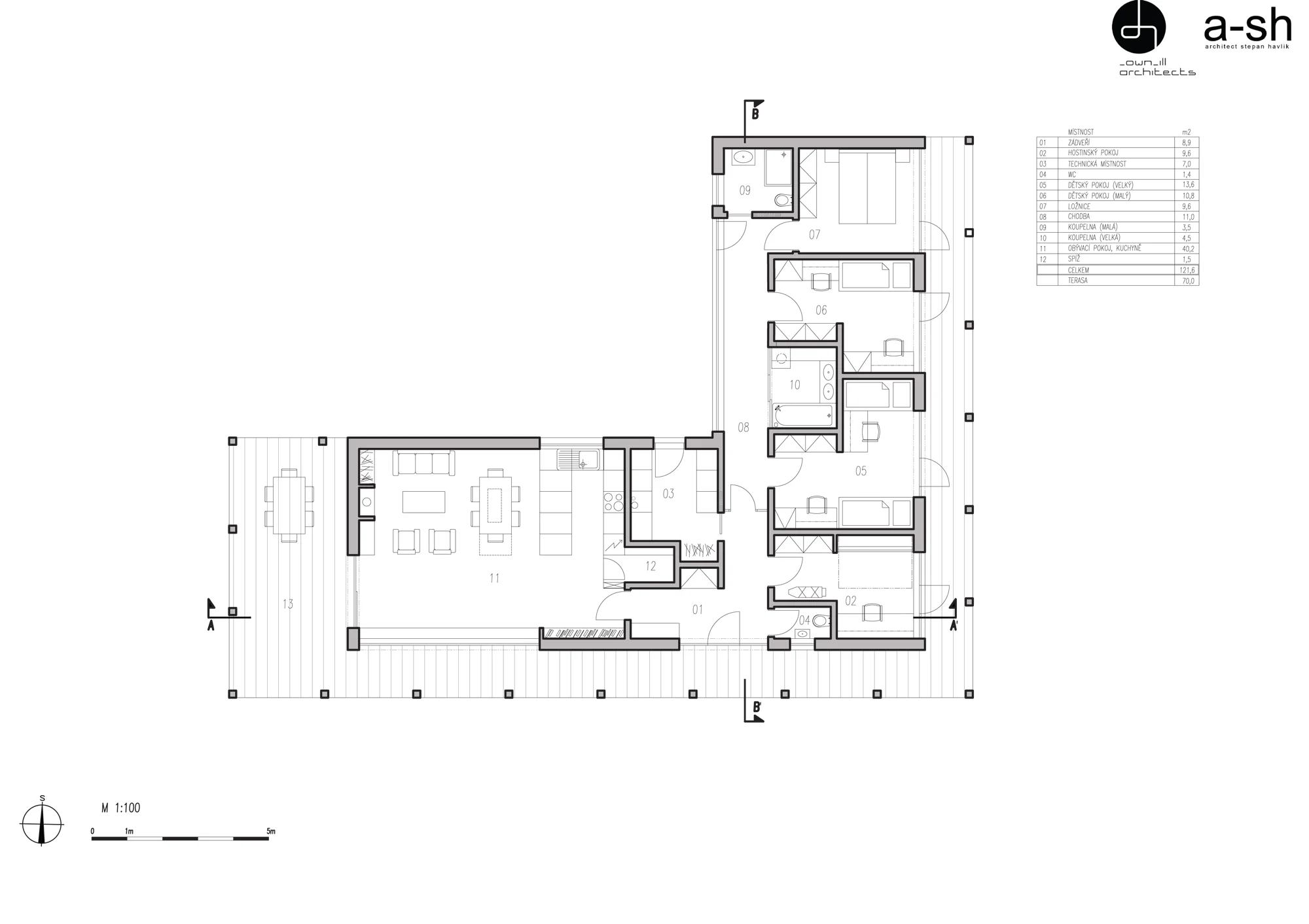
pudorys.JPG
       
     
rezAA.JPG
       
     
rezBB.JPG
       
     
situacka.JPG
       
     
Dům se čtyřmi zahradami [Radomyšl]
       
     
Dům se čtyřmi zahradami [Radomyšl]

projekt/ realizace: 2019/ —
studie
spoluautor: Ing.arch. David Hlouch
vizualizace

Tento dům je navržen pro rodinu, které záleží na tom jak se chová ve svém životním prostředí a o svém bydlení velice přemýšlí. Umístění domu na pozemku vychází z konceptu 4 zahrad, kdy stávající zahradu rozděluje na čtyři nové; každá má svůj účel a charakteristickou kvalitu; Aktivní zahrada, Produktivní zahrada, Klidová zahrada a Dvorek se stromem. Sestává ze dvou křídel klidové a aktivní zóny. Hmoty křídel jsou zastřešeny mírně svažitými protilehlými bezpřesahovými pultovými střechami. Pultové střechy se propisují do interiéru a vytváří tak ve všech pobytových místnostech gradaci světlé výšky prostoru směrem k proskleným propojením se zahradou. Východní a jižní část domu jsou lemovány prstencem, který tvoří dřevěná paluba zápraží, krytá plochou extenzivně vegetační střechou vynesenou na sloupech z rostlých odkorněných kmenů. Zápraží i zastřešení přechází v čele aktivního křídla do prostorné pobytové terasy.

jihoychodni_kamera06.jpg
       
     
jiznii_kamera02.jpg
       
     
vychodni_kamera03.jpg
       
     
interier04_.jpg
       
     
interier01.jpg
       
     
interier03.jpg
       
     
interier02.jpg
       
     
pudorys.JPG
       
     
rezAA.JPG
       
     
rezBB.JPG
       
     
situacka.JPG